Project Description
Villa del Agua
| Property Type: | Villa House |
| Status: | Planned, For Sale |
| Location | |
| Street: | Quay Villas, Pauanui Waterways |
| Region: | Pauanui |
| District: | Thames-Coromandel Waikato |
| Sale Price: | |
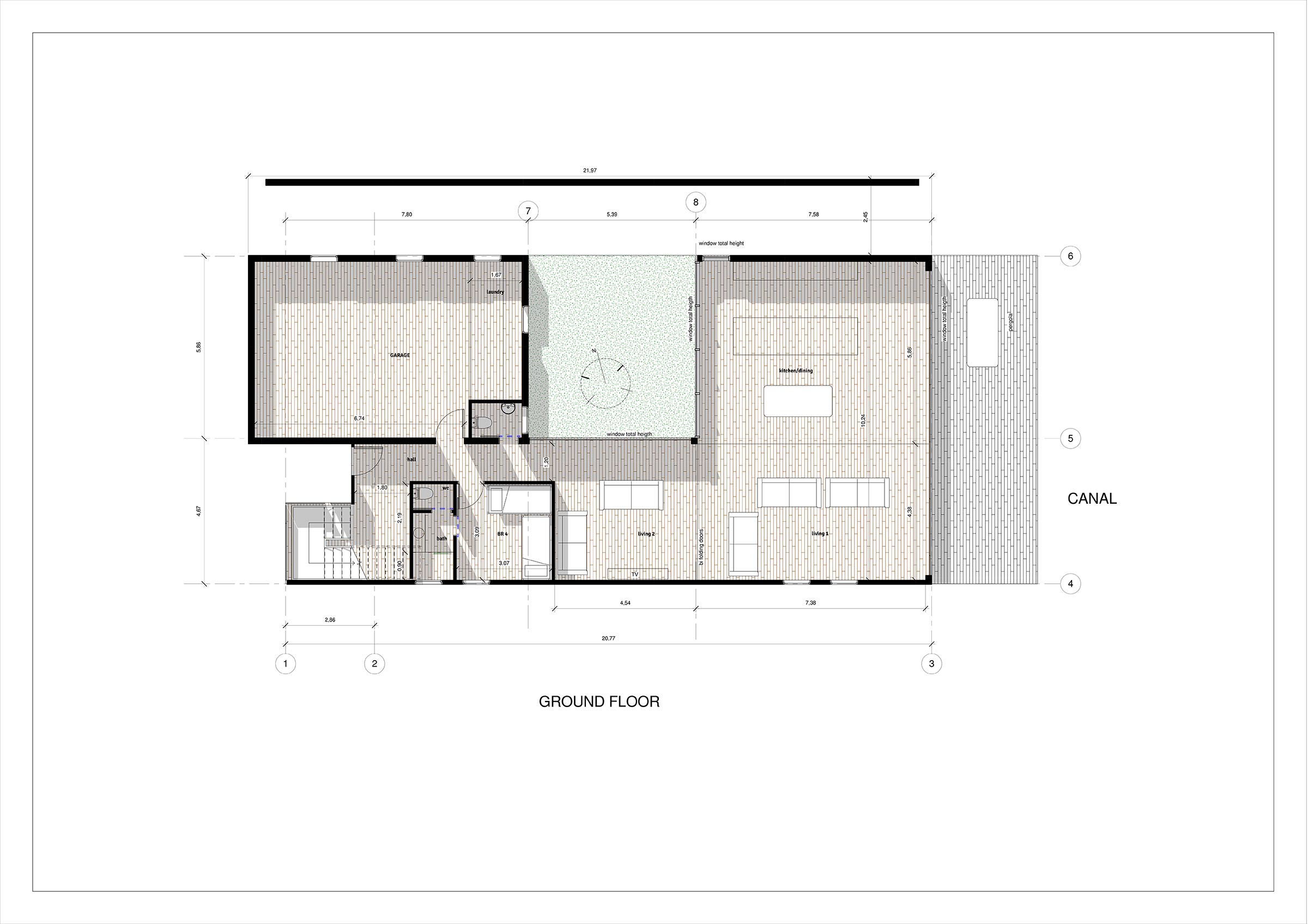
| Bedrooms: | 3 or 4 |
| Bathrooms: | 3 or 4 |
| Toilet: | 4 or5 |
| Living: | 2 or 3 |
| Garaging: | 2 |
| Area | |
| Land | |
| Floor | 260m2 |
| Nearby: |